8 800 301 0295
бесплатный звонок
EQON A. Одноэтажный каменный дом с плоской или скатной крышей, площадью 70 м²

ЖИЛАЯ/ОБЩАЯ ПЛОЩАДЬ 70 м²
Площадь застройки 80 м²
Высота m
Угол наклона кровли 2°
Площадь крыши 70 m²
Минимальные размеры участка шир. 18,18m × длина 16,28m
МАТЕРИАЛЫ
Стены кирпич, газобетон, керамические блоки
Перекрытие по балкам, монолитное перекрытие
Кровля ПВХ мембрана, металлочерепица
2 790 000 ₽
БАЗОВАЯ КОМПЛЕКТАЦИЯ
3 290 000 ₽
ПРЕДЧИСТОВАЯ ОТДЕЛКА
3 998 000 ₽
ЧИСТОВАЯ ОТДЕЛКА
Все цены на сайте актуальны и фиксируются в договоре.
EQON A. Одноэтажный каменный дом с плоской или скатной крышей, площадью 70 м²

ЖИЛАЯ/ОБЩАЯ ПЛОЩАДЬ 70 м²
Площадь застройки 80 м²
Высота m
Угол наклона кровли 2°
Площадь крыши 70 m²
Минимальные размеры участка шир. 18,18m × длина 16,28m
МАТЕРИАЛЫ
Стены кирпич, газобетон, керамические блоки
Перекрытие по балкам, монолитное перекрытие
Кровля ПВХ мембрана, металлочерепица
2 790 000 ₽
БАЗОВАЯ КОМПЛЕКТАЦИЯ
3 290 000 ₽
ПРЕДЧИСТОВАЯ ОТДЕЛКА
3 998 000 ₽
ЧИСТОВАЯ ОТДЕЛКА
Все цены на сайте актуальны и фиксируются в договоре.
Расчёт стоимости строительства дома
Заполните эту форму, чтобы получить предварительный расчёт стоимости вашего дома. Для этого достаточно указать материал стен, этажность, комплектацию и площадь дома.
Онлайн-заявка на льготную ипотеку от 6%
Заполните одну форму, чтобы получить предварительное решение по льготной ипотеке сразу от нескольких банков-партнеров и выбирайте лучшее предложение!
Купить проект этого дома онлайн
Купите на сайте полную документацию для строительства дома (АР+КР), если хотите строить самостоятельно. Доставка осуществляется по России и странам СНГ.
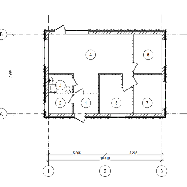
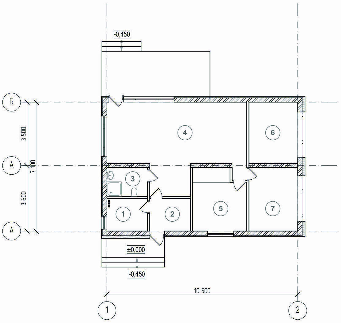
Вариант планировки


Большие панорамные окна еще больше подчеркивают единение с природой. Такой вариант – отличный выбор для жизни за городом. Внутренне пространство поделено так, что для каждого члена семьи здесь имеется свое отдельное помещение для отдыха и работы.
EQON A – прекрасный выбор для семьи, где на первом месте стоит уют и функциональность. Здесь найдется достаточно места для дружеских посиделок и семейных застолий. К преимуществам можно отнести:
- практически неограниченные решения по внутренней планировке;
- отсутствие колон и лестниц на второй этаж;
- строгие и лаконичные формы здания;
- возможность реализации идеи с использованием различных строительных и отделочных материалов.
Интерьер помещений может быть оформлен в большинстве современных стилей, включая такие, как: "лофт", "хай-тек", "модерн", "минимализм" и прочие. По желанию заказчиков, в готовый проект можно внести любые изменения и корректировки.
ЧТО ВХОДИТ В БАЗОВУЮ КОМПЛЕКТАЦИЮ?
Фундамент
Кладка стен
Кровля
Чердачное перекрытие
Окна, входные двери
Террасы, входные группы и лестницы на второй этаж не учитываются
Акционные предложения могут отличаться от стандартной комплектации
ЧТО ВХОДИТ В ПРЕДЧИСТОВУЮ ОТДЕЛКУ?
ДОПОЛНИТЕЛЬНО К БАЗОВОЙ КОМПЛЕКТАЦИИ:
Утепленные полы
Оштукатуренные стены внутри дома
Разводка электросети
Разводка ХВС, ГВС, канализации
Система отопления без котла
Террасы, входные группы и лестницы на второй этаж не учитываются
ЧТО ВХОДИТ В ЧИСТОВУЮ ОТДЕЛКУ?
ДОПОЛНИТЕЛЬНО К ПРЕДЧИСТОВОЙ ОТДЕЛКЕ:
Напольные покрытия
Окрашенные стены внутри дома или обои
Освещение в доме
Санузлы
Межкомнатные двери
Тёплые полы
Террасы, входные группы и лестницы на второй этаж не учитываются
Купите проект и стройте сами
Индивидуальная разработка на базе проекта EQON A
АР - архитектурный раздел
КР - конструктивный раздел
Спецификация материалов
Обычная цена: 39 990 руб.
Цена со скидкой:
29990
руб.
Подробнее
Купить
Проект дома EQON A 70 м² АР + КР
АР - архитектурный раздел
КР - конструктивный раздел
Спецификация материалов
Обычная цена: 29 990 руб.
Цена со скидкой:
17990
руб.
Подробнее
Купить
Преимущества
- Ипотека от Сбербанка, ДОМ.РФ
- Услуга технадзора БЕСПЛАТНО
- Проект БЕСПЛАТНО
- Геология участка БЕСПЛАТНО
- Изменения в проект БЕСПЛАТНО
- Гарантия от 5 лет
Отзывы о проекте
Отзывов об этом проекте пока нет. Вы можете быть первым кто его оставит.
Не выбрали проект дома на сайте?
Закажите разработку индивидуального проекта — это бесплатно!
Видеоотчёты с объектов строительства
Вилла Эстет, заливка фундамента в Ижевске, Гольяны, Софт 29
Обработка видео...
Устройство стропильной системы, орловское, Софт 93
Обработка видео...
Вилла Эстет, Завьялово, Индивидуальный проект.
Обработка видео...
Утепление полов перед бетонированием, Ижевск, софт30
Обработка видео...
Вилла Эстет, процесс бетонирования полов, Комфорт251
Обработка видео...
Вибрирование бетона при заливке фундамента, Индивидуальный проект
Обработка видео...
звонок бесплатный
WhatsApp / Telegram / E-mail
Москва и Московская область
+79254261890 / rp@моявилла.рф
Ижевск и Удмуртская Республика
Адреса филиалов:
г. Ижевск, ЦД Сити, ул. Холмогорова, 15, 2 этаж
г. Москва, башня Империя, Пресненская набережная, 6с2
Корзина пуста
0
шт.
/
0 руб.
Перейти в корзину
Очистить